Karta domu - 28B - 92
Numer domu:
28B - 92
Cena brutto/m² powierzchni użytkowej:
9 621,39 zł
rezerwacja
rezerwacja
Cena brutto:
925 000,00 zł
rezerwacja
rezerwacja
Udział w działkach wspólnych brutto:
2 460,00 zł
Cena całkowita zakupu brutto:
927 460,00 zł
rezerwacja
rezerwacja
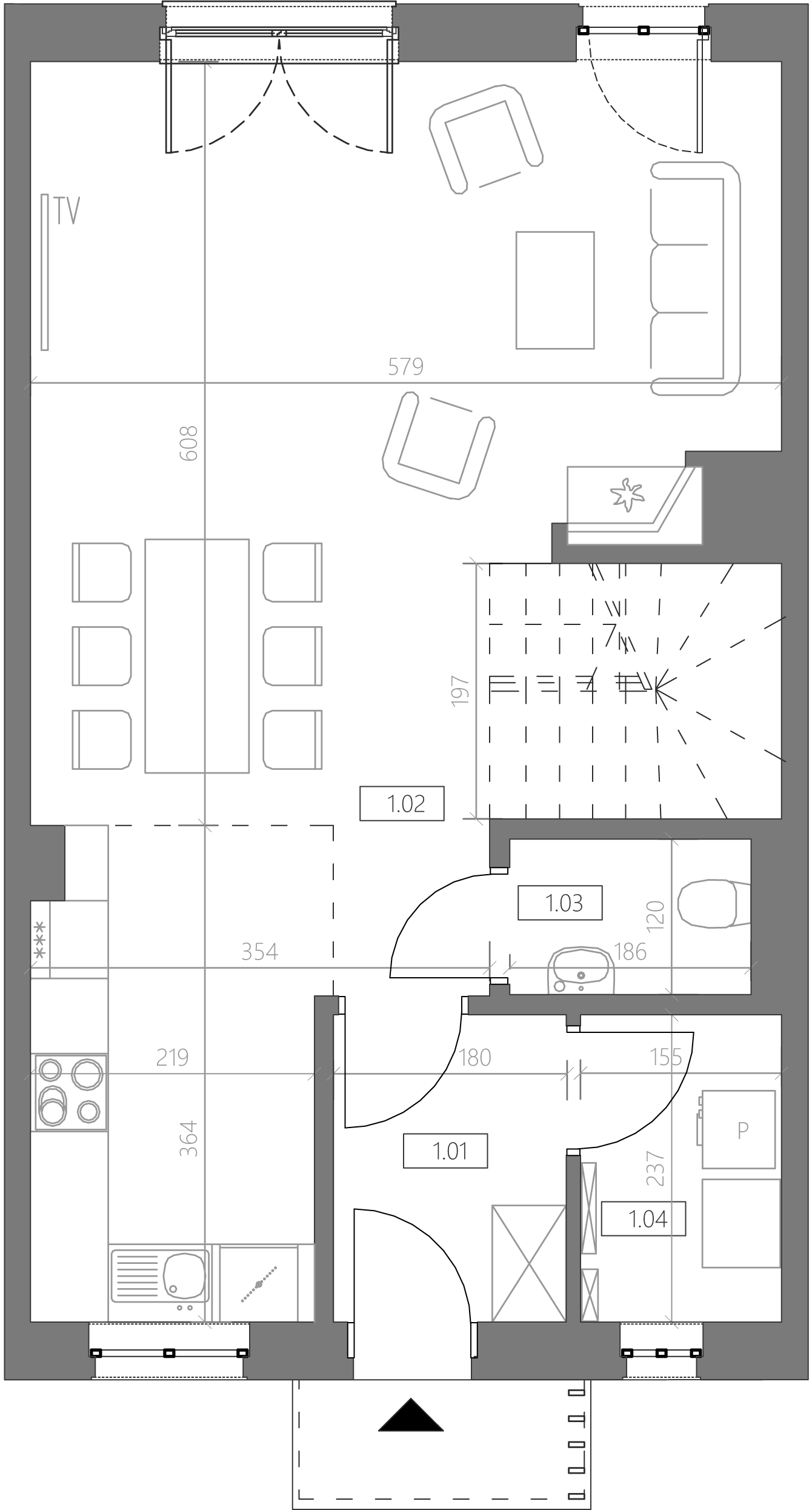
Pow. użytkowa:
96,14 m2
Zabudowa:
szeregowa
Segment:
B
Pow. działki
0,0169 ha
Dwa miejsca postojowe
Lokalizacja domu:
Dokument do pobrania: Prospekt informacyjny Osiedle Zielona Widawa - część ogólna (PDF)
















